鄭州杰凱專業生產垂直螺旋上料機生產廠家,適用于粉末物料的垂直輸送,采用自流式進料方式,對于流動性不是特別好的物料,可以在水平方向加裝強推螺旋,該垂直螺旋式提升機,安裝占地空間小,運輸物料平穩,可以根據客戶受料設備的具體尺寸量身定制,可加裝變頻器進行變頻調速,方便控制物料的輸送量。

一、垂直螺旋式上料機的技術參數。
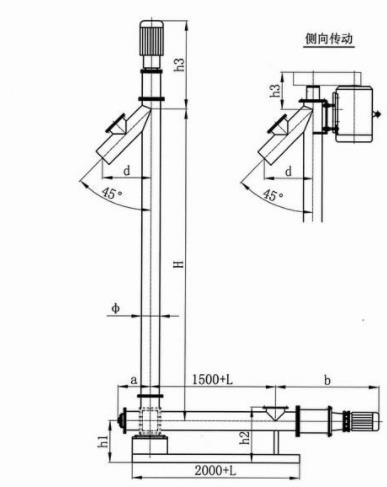
1、輸送高度:1650mm(特殊要求可定制)
2、功率:AC380V50HZ.1.5KW。
3、整機重量:120kg。
4、儲料倉容量:100L。
5、輸送量:3m3/小時。
6、本公司生產的垂直螺旋式上料機標準配置輸送管外徑為φ114mm,提升高度為1650mm,輸送管夾角為45°。特殊情況可根據客戶要求定制(輸送量、輸送高度等)。
7、給料機是一種由低到高的物料輸送設備。節省人力,減少材料灑在地上,減少損失和浪費。這種垂直螺旋上料機是我公司根據緊湊的車間設計的不銹鋼給料設備,可以盡可能節省占地面積,從低到高垂直輸送給料。
2.整機所有與物料接觸的部件均采用304不銹鋼,長度設計范圍為1米-12米,送料管直徑為60mm-500mm,可根據客戶要求設計。主軸電機的功率取決于客戶要求和材料選擇。
3.垂直螺旋上料機不銹鋼送料管內壁與螺旋葉片之間的間隙距不得超過3mm。激光切割螺旋葉片,拋光所有焊接接頭,;
4.送料速度超過每小時100KG-15噸。
5.垂直螺旋提升機采用進口萬向軸承保溫防塵設計,臺灣省進口油封設計安裝在進料機兩端,確保灰塵和雜物進入軸承,達到耐用的目的。
科學設計:螺旋軸采用不銹鋼無縫管,經車床校正,保證同心度,機器運行穩定,葉片采用不銹鋼。葉片上加厚不銹鋼葉片。
垂直螺旋提升機底部設計有清料口。如果需要換料,只需用風槍吹下即可清理少量殘渣。并在清料口設計安全開關,一旦清料門打開就斷電,安全可靠。
8.電路設計為過載保護,有效保護電機不燃燒。

二、產品綜述:
1、垂直式螺旋式上料機占用空間小,比較適合用于場地受到限制的區域
2、可以配置我司的Plc自動控制供料系統,通過安裝與受料設備的物料面的阻尼式料位器,實現自動化的供料
3、垂直螺旋式上料機通過加裝水平輸送,強制性讓粉末物料進入輸送管內,對于流動性不是特別好的物料特別適用
4、垂直式螺旋提升機的同心度比較好
5、源頭廠家直銷,可根據受料設備的具體尺寸,我司工程師免費設計供料方案,價格優惠




客服1